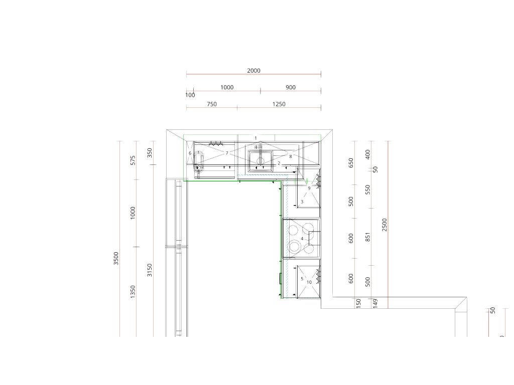
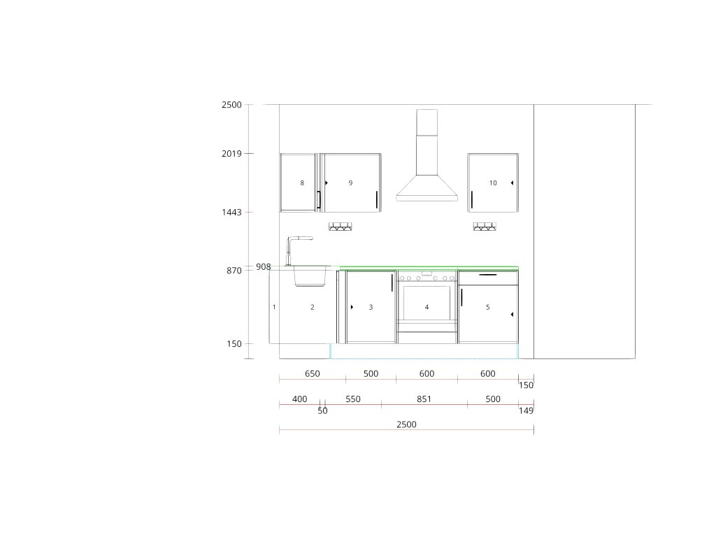
Kuchyně "L" ECONOMY 2,35x2m Levá
Kód: 56/BIL 56/IVO 56/HED 56/PIS 56/MAC 56/TAU 56/CER Zvolte variantuRychlé dodání
s námi bydlíte už do 2 měsíců
Flexibilita
jeden kontakt, žádné starosti
Úspora času a peněz
u nás za parádu nepřeplácíte
Detailní popis produktu
Kuchyně Ekonomy jsou vyrobeny z kvalitních materiálů a dodávány již ve smontovaném stavu (korpusy jsou smontované). Všechny kuchyně Ekonomy jsou vyrobeny z kvalitního lamina které je testované na životnost 15 let.
Kuchyň je složena z:
60cm dveřové skříňky s policí a šuplíkem (pravá)
60cm korpusem pro troubu
50cm dveřové skříňky s policí (levá)
100cm rohové dřezové skříňky s policí a 60cm širokými dvířky (pravá)
50cm dveřové skříňky s policí (pravá)
60cm dveřové skříňky s policí (levá)
90cm rohové dveřové skříňky s policí a 45 cm širokými dvířky (pravá)
100cm dvoudveřové skříňky s policí
pracovní deska, sokl, výkryt ke stěně
Doplňkové parametry
| Kategorie: | Kuchyně |
|---|---|
| Záruka: | 2 roky |
Buďte první, kdo napíše příspěvek k této položce.
Přidat komentář
